Te koop: Bouwgrond van 542 m² op toplocatie in Steendorp
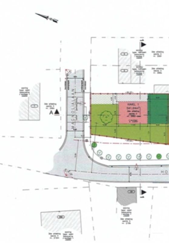
Op zoek naar de perfecte plek voor je droomhuis? Deze unieke bouwgrond van 542 m², gelegen op de hoek van de Magnolialaan en de Hospitaalstraat te Steendorp, biedt je de ideale gelegenheid om een prachtige open bebouwing te realiseren.
Deze grond maakt deel uit van een nieuwe verkaveling van 2 percelen, waarvan alleen dit perceel te koop is. Dankzij de strategische ligging aan een rustige, doch goed bereikbare weg, geniet je van een landelijke sfeer met het comfort van nabijgelegen voorzieningen en vlotte toegang tot het centrum.
Kenmerken van het perceel:
Oppervlakte: 542 m²
Ligging: Hoekperceel, wat extra mogelijkheden biedt voor een aantrekkelijke indeling en tuin
Bestemming: Geschikt voor een open bebouwing, ideaal voor wie ruimte en privacy waardeert
Rustige en groene omgeving, met de nodige nabijheid van scholen, winkels en openbaar vervoer
Enkel dit perceel te koop, wat het tot een exclusieve gelegenheid maakt
Grijp deze kans om in een gewilde regio te bouwen en creëer een woning die volledig aansluit bij jouw wensen. Neem vandaag nog contact op voor meer informatie of een bezichtiging!