9170 Sint-Gillis-Waas
Ontdek de luxe en het comfort van dit landelijk gelegen nieuwbouwproject.
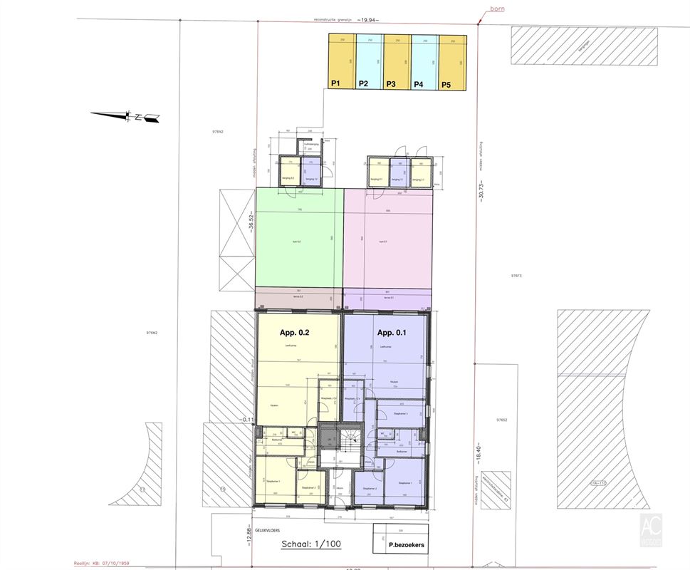
Met nog slechts 2 beschikbare appartementen, mag u er gerust snel bij zijn om jouw stekje in deze kleinschalige residentie te claimen.
Ben je op zoek naar een nieuwbouw waar stijl en comfort samenkomen? Dan zijn deze luxe appartementen precies wat je zoekt! Gelegen in een groene omgeving, doch in de nabijheid van diverse buurtwinkels, bieden ze de perfecte balans tussen hedendaags comfort en een landelijke omgeving waar u tot rust kan komen.
Waarom kiezen voor deze appartementen?
Hoogwaardige afwerking, een slimme indeling van de ruimtes met veel lichtinval, duurzame materialen, individuele zonnepanelen, een warmtepomp, een goed ventilatiesysteem, en mooie buitenruimtes vormen dé ingrediënten voor jouw ideale thuis.
Met een E-Peil van maximaal E20 geniet je vijf jaar lang van 50% korting op de onroerende voorheffing. Goed voor je portemonnee en het milieu!
Extra Voordelen:
- Een vaste aankoopprijs.
- Stel zelf jouw keuken samen.
- Verlaagd BTW-tarief van 6% mogelijk. Vraag naar de voorwaarden.
- Er kan een parking en externe berging mee aangekocht worden.
De bouwwerkzaamheden zitten reeds in de eindfase, zo kan je waarschijnlijk eind dit jaar jouw nieuwe appartement betrekken!
Neem snel contact op voor meer info of een plaatsbezoek!
2 - 3 Slp.
111 - 131 m²












